鉄鋼会館
鉄鋼会館の油絵
会議室へ
利用申込書へ
「株主総会」会場のご案内へ
宴会・パーティーへ
レストランへ
会社案内へ
アクセスへ
鉄鋼会館建物のご案内へ
住所・受付
e-mailを送る
営業時間
ネットショップ鉄鋼会館へ
  新着情報へ 月極駐車場のご案内へ お問い合わせへ テナントのご案内へ ニューオータニグループレストランへ
会議室
ご利用料金へ付帯設備へお食事メニューへご利用規約へお問い合わせへ

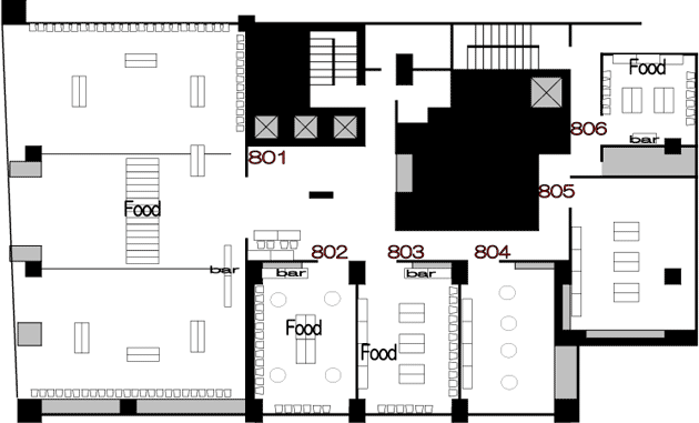
見取り図

御希望の部屋をクリックすると室内の詳しい情報が表示されます

701を見る 707を見る 706を見る 705を見る 704を見る 702を見る 701を見る 707を見る 706を見る 705を見る 704を見る 703を見る 702を見る


801を見る 805を見る 804を見る 803を見る 806を見る

811を見る 812を見る

900を見る


900を見る
913を見る

学校型見取り図を見る 口型見取り図を見る 立食宴会見取り図えを見る 着席宴会見取り図を見る



ページの上に戻る
コピーライト